堂々完成!瀬田アドレスの高台!スカイバルコニー付き新築戸建1号棟!!

1億2,200万円

東京都世田谷区瀬田5丁目

東急田園都市線「用賀」駅徒歩15分

東急大井町線「上野毛」駅徒歩28分

東急田園都市線「二子玉川」駅徒歩22分

価格
1億2,200万円
間取り/建物面積
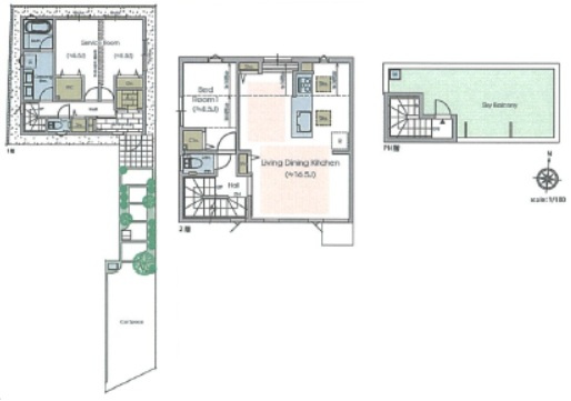
1LDK/90.66㎡
所在地
東京都世田谷区瀬田5丁目
築年
2025年6月(新築)
駐車
-
交通

東急田園都市線用賀」駅 徒歩15分

東急大井町線上野毛」駅 徒歩28分

東急田園都市線二子玉川」駅 徒歩22分

堂々完成!瀬田アドレスの高台!スカイバルコニー付き新築戸建1号棟!!の基本情報

物件名
堂々完成!瀬田アドレスの高台!スカイバルコニー付き新築戸建1号棟!!
価格
1億2,200万円
建物面積
90.66㎡
土地面積
28.79坪(95.20㎡)
築年月
2025年6月(新築)
総戸数
4戸
所在地
東京都世田谷区瀬田5丁目
交通

東急田園都市線用賀」駅 徒歩15分

東急大井町線上野毛」駅 徒歩28分

東急田園都市線二子玉川」駅 徒歩22分

堂々完成!瀬田アドレスの高台!スカイバルコニー付き新築戸建1号棟!!の詳細情報

設備条件
  • 閑静な住宅地
  • 駐輪場
  • 宅配ボックス
設備(その他)
    -
駐車場/月額
-/-
土地権利
所有権
国土法届出
不要
用途地域
第一種低層住居専用
取引態様
仲介
引渡し
即時

堂々完成!瀬田アドレスの高台!スカイバルコニー付き新築戸建1号棟!!で募集中の物件

  1. 27.42坪 (90.66㎡)

    12,200万円(423.76万円/坪)

周辺施設

  • 瀬田四丁目広場(旧小坂家住宅)の画像

    公園

    瀬田四丁目広場(旧小坂家住宅)

    175m(3分)

  • 岡本下山小緑地の画像

    公園

    岡本下山小緑地

    340m(5分)

  • 聖ドミニコ学園幼稚園の画像

    幼稚園

    聖ドミニコ学園幼稚園

    426m(6分)

  • まいばすけっと 世田谷岡本1丁目店の画像

    スーパー

    まいばすけっと 世田谷岡本1丁目店

    447m(6分)

  • ローソン 世田谷瀬田五丁目店の画像

    コンビニエンスストア

    ローソン 世田谷瀬田五丁目店

    469m(6分)

  • 青い空保育園の画像

    保育園

    青い空保育園

    550m(7分)

  • セブンイレブン 用賀インター店の画像

    コンビニエンスストア

    セブンイレブン 用賀インター店

    605m(8分)

  • 砧公園の画像

    公園

    砧公園

    848m(11分)

  • 岡本公園の画像

    公園

    岡本公園

    881m(12分)

  • マルエツ 二子玉川店の画像

    スーパー

    マルエツ 二子玉川店

    888m(12分)

  • JA東京中央 ファ-マ-ズマ-ケット 二子玉川の画像

    スーパー

    JA東京中央 ファ-マ-ズマ-ケット 二子玉川

    943m(12分)

  • 世田谷区立瀬田小学校の画像

    小学校

    世田谷区立瀬田小学校

    1142m(15分)

  • 世田谷区立瀬田中学校の画像

    中学校

    世田谷区立瀬田中学校

    1272m(16分)

  • 玉川高島屋ショッピングセンター マロニエコートの画像

    デパート

    玉川高島屋ショッピングセンター マロニエコート

    1283m(17分)

近隣の物件

  1. 世田谷区等々力6丁目

    4LDK (180.83㎡)

    22,800万円

  2. 世田谷区等々力5丁目

    4LDK (131.65㎡)

    18,080万円

  3. 世田谷区玉川台2丁目

    4LDK (123.68㎡)

    19,500万円

  4. 世田谷区野沢1丁目

    3LDK (97.12㎡)

    8,180万円

堂々完成!瀬田アドレスの高台!スカイバルコニー付き新築戸建1号棟!!

お気軽にお問い合わせください

無料お問い合わせ

NAHIRO株式会社

03-6804-8040

10:00~19:00

(休:火曜日・水曜日)