世田谷区世田谷 完成デザイナーズ住宅A号棟

2億円

東京都世田谷区世田谷1丁目

東急世田谷線「世田谷」駅徒歩5分

東急世田谷線「上町」駅徒歩9分

東急田園都市線「桜新町」駅徒歩21分

価格
2億円
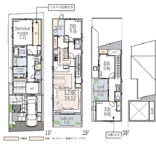
間取り
3LDK+S(納戸)
土地面積
99.68㎡
所在地
東京都世田谷区世田谷1丁目
交通

東急世田谷線世田谷」駅 徒歩5分

東急世田谷線上町」駅 徒歩9分

東急田園都市線桜新町」駅 徒歩21分

建物面積
164.63㎡
築年月
2025年10月(新築)

物件の特徴

  • バストイレ別

  • TVモニタ付きインターホン

  • カウンターキッチン

  • 浴室乾燥機

セールスポイント

食器洗乾燥機は食後の家事の時間短縮に役立ちます。永く住む家だからこそこだわり抜いた2億円の物件をどうぞ。暮らしに役立つ設備の充実した、2025年10月築の物件となります。スーパーが近いので、買い物に時間をかけずに済みますよ。住環境を見直しませんか。暮らしの中でも、住居は充実した生活を送るための大きな役割を担っています。不動産を探すなら、当社にお任せください。

ポイント

フローリング クロゼット2ヶ所 2沿線利用可 1種低層 24時間換気システム

担当者のコメント

川元 洋志

「世田谷区世田谷 完成デザイナーズ住宅A号棟」:世田谷区エリアの新居にピッタリ。小学校が十分通学できる範囲にあります。世田谷区立弦巻小学校が徒歩4分です。TVインターホン付きなので、女性の方も安心です。とてもゆとりのある環境が魅力の2億円の物件。不動産情報はもちろん、地域情報も詳しくお伝え致します。世田谷区で生活するにあたって気になる点があれば、ぜひご質問くださいませ。

基本情報

販売戸数
1戸
総戸数
2戸
間取り / 詳細
3LDK+S(納戸)
S 7.7帖 1室/洋室 5.2帖 1室/LDK 24.5帖 1室/5.6帖 1室/洋室 6.8帖 1室
向き
建物面積(坪数)
164.63㎡(49.8坪)
土地面積(坪数)
99.68㎡(30.15坪)
建ぺい率 /
容積率
60%/150%
築年月
2025年10月(新築)
駐車場 /
月額料金
有(屋根有) 0円
土地権利
所有権
土地
(敷金 / 保証金)
- / -
建物構造
木造 / 3階建
傾斜地部分面積
-
路地状敷地
-
私道負担面積
-
セットバック
高圧線下面積
-
施工会社
-
用途地域
第一種低層住居専用
地目 / 地勢
宅地 / 平坦
接道状況
一方(南 公道 5.0m)
国土法届出要否
不要
都市計画
市街化区域
総区画数 /
販売区画数
2区画/1区画
現況
完成済み
その他
法令上の制限
高度地区/準防火地域
取引態様
仲介
引渡し
相談
取引条件の
有効期限
2026年01月22日

設備条件

設備条件
  • 陽当り良好 / 閑静な住宅地 / フローリング / バルコニー / ルーフバルコニー / 都市ガス / 公営水道 / 公共下水 / 24時間換気システム / 耐震構造 / コンロ2口以上 / 食器洗い乾燥機 / システムキッチン / カウンターキッチン / コンロ3口 / バス・トイレ別 / 追焚機能浴室 / 浴室乾燥機 / 温水洗浄便座 / エアコン / 床暖房 / ウォークインクロゼット / 食品庫 / 収納豊富 / TVモニタ付インターホン / 複層ガラス / ディンプルキー
設備(その他)
    -

その他

物件番号
100450422
管理コード
-
建築確認番号
-
情報更新日
2026年01月10日
次回更新予定日
2026年01月22日
取扱会社
  • NAHIRO株式会社
  • 東京都渋谷区松濤2丁目7-12 松濤ハウス 1階
  • TEL:03-6804-8040
  • 東京都知事 (1) 第111039号
  • 全日本不動産協会・不動産保証協会
備考
サミットストア 松陰神社前店まで427mです。令和7年10月築の物件で、新生活をお考えの方にお勧めです。雨や日照りから自動車やオートバイを保護するカーポート付き。当社スタッフが世田谷区での住まい探しを全力でサポート致しますので、不動産情報をお求めならお気軽にお問い合わせください。

周辺施設

  • セブンイレブン 世田谷中央病院前店の画像

    コンビニエンスストア

    セブンイレブン 世田谷中央病院前店

    37m(1分)

  • まいばすけっと 世田谷1丁目店の画像

    スーパー

    まいばすけっと 世田谷1丁目店

    172m(3分)

  • 世田谷1丁目ゆたか園の画像

    保育園

    世田谷1丁目ゆたか園

    214m(3分)

  • 世田谷区立弦巻小学校の画像

    小学校

    世田谷区立弦巻小学校

    245m(4分)

  • サミットストア 松陰神社前店の画像

    スーパー

    サミットストア 松陰神社前店

    427m(6分)

  • 世田谷電車のみえる公園の画像

    公園

    世田谷電車のみえる公園

    586m(8分)

  • 世田谷区立弦巻中学校の画像

    中学校

    世田谷区立弦巻中学校

    591m(8分)

  • 青葉学園幼稚園の画像

    幼稚園

    青葉学園幼稚園

    630m(8分)

  • オオゼキ 上町店の画像

    スーパー

    オオゼキ 上町店

    718m(9分)

  • 小泉公園の画像

    公園

    小泉公園

    729m(10分)

  • 世田谷城阯公園の画像

    公園

    世田谷城阯公園

    893m(12分)

  • 太子堂八幡神社の画像

    寺院・神社

    太子堂八幡神社

    1830m(23分)

支払いシミュレーション

月々の支払額
9.6
購入希望物件価格
万円
頭金
万円
金利
%
返済額(ボーナス1回分)
万円
返済期間

※ボーナスは自動で年2回分で計算されます。

近隣の物件

  1. 12/23 価格変更

    世田谷区若林5丁目

    3LDK (105.56㎡)

    11,980万円

  2. 世田谷区玉川台 中古戸建

    世田谷区玉川台2丁目

    4LDK (123.68㎡)

    19,500万円

  3. 最寄駅自由が丘 新築戸建

    世田谷区等々力6丁目

    4LDK (180.83㎡)

    22,800万円

  4. 世田谷区等々力 新築戸建

    世田谷区等々力5丁目

    4LDK (131.65㎡)

    18,080万円

世田谷区世田谷 完成デザイナーズ住宅A号棟

世田谷区世田谷 完成デザイナーズ住宅A号棟

2億円

-

3LDK+S(納戸)(164.63㎡)

お気軽にお問い合わせください

無料お問い合わせ

NAHIRO株式会社

03-6804-8040

10:00~19:00

(休:火曜日・水曜日)