目黒区柿の木坂 新築戸建1号棟

19,990万円

東京都目黒区柿の木坂3丁目

東急田園都市線「駒沢大学」駅徒歩16分

東急東横線「学芸大学」駅徒歩17分

東急東横線「都立大学」駅徒歩19分

価格
19,990万円
間取り
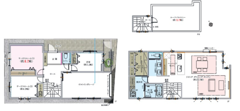
1LDK+2S(納戸)
土地面積
106.64㎡
所在地
東京都目黒区柿の木坂3丁目
交通

東急田園都市線駒沢大学」駅 徒歩16分

東急東横線学芸大学」駅 徒歩17分

東急東横線都立大学」駅 徒歩19分

建物面積
143.46㎡
築年月
2025年12月(予定)

物件の特徴

  • バストイレ別

  • TVモニタ付きインターホン

  • カウンターキッチン

  • 浴室乾燥機

セールスポイント

こだわりで選びたい方におすすめ。目黒区エリアで住まいをお探しなら「目黒区碑文谷 新築戸建1号棟」。日々の暮らしに便利な成城石井 柿の木坂店(スーパー)まで457mです。コチラの物件の向きは、南東向きの物件です。東急田園都市線駒沢大学周辺で快適な暮らしが送れるよう、当社スタッフがサポート致します。住まい探しでしたら是非お任せください。

ポイント

システムキッチン 床暖房 浴室乾燥機 給湯 三面鏡付洗面化粧台

担当者のコメント

國兼 弘行

こだわりポイント満載の目黒区碑文谷 新築戸建1号棟。歩いて257mの場所に、サミットストア 野沢龍雲寺店があります。1SLDKの物件で、安らぎの空間と快適な生活を実現しませんか。TVインターホン付きなので、女性の方も安心です。快適なお住まいを見つけて、新しい生活をスタートさせましょう。これから先のあなたの生活を豊かにする不動産に出会えます。ぜひご検討ください。

基本情報

販売戸数
1戸
総戸数
2戸
間取り / 詳細
1LDK+2S(納戸)
S 6.0帖 1室/S 8.2帖 1室/洋室 5.2帖 1室/LDK 24.5帖 1室
本物件間取り1LDK+2S
向き
南東
建物面積(坪数)
143.46㎡(43.39坪)
土地面積(坪数)
106.64㎡(32.25坪)
建ぺい率 /
容積率
60%/150%
築年月
2025年12月(予定)
駐車場 / 月額
有 / 0円
土地権利
所有権
土地
(敷金 / 保証金)
- / -
建物構造
木造 / 2階建
傾斜地部分面積
-
路地状敷地
-
私道負担面積
-
セットバック
高圧線下面積
-
施工会社
-
用途地域
第一種低層住居専用
地目 / 地勢
宅地 / 平坦
接道状況
一方(東 私道 4.0m)
国土法届出要否
不要
都市計画
市街化区域
総区画数 /
販売区画数
2区画/1区画
現況
未完成
その他
法令上の制限
高度地区/準防火地域
取引態様
仲介
引渡し
2025年12月下旬
取引条件の
有効期限
2026年04月30日

設備条件

設備条件
  • 陽当り良好 / 閑静な住宅地 / フローリング / ルーフバルコニー / 都市ガス / 公営水道 / 公共下水 / 24時間換気システム / ビルトガレージ / コンロ2口以上 / 食器洗い乾燥機 / システムキッチン / カウンターキッチン / コンロ3口 / バス・トイレ別 / 追焚機能浴室 / 浴室乾燥機 / 温水洗浄便座 / 床暖房 / 収納豊富 / TVモニタ付インターホン / 複層ガラス / ディンプルキー
設備(その他)
    -

その他

物件番号
98945189
管理コード
-
建築確認番号
第2025SBC-確00383Y号
情報更新日
2026年04月16日
次回更新予定日
2026年04月30日
取扱会社
  • NAHIRO株式会社
  • 東京都渋谷区松濤2丁目7-12 松濤ハウス 1階
  • TEL:03-6804-8040
  • 東京都知事 (1) 第111039号
  • 全日本不動産協会・不動産保証協会
備考
ぜひ一度見ていただきたい、「目黒区碑文谷 新築戸建1号棟」です。成城石井 柿の木坂店まで徒歩6分です。来客が一目でわかるTVインターホン付き。安らぎの環境のある、1億9,990万円の快適な物件です。目黒区での暮らしは非常に快適なので、きっとお客様にも満足していただけるでしょう。不動産の購入を検討しているのであれば、当社にお任せください。

周辺施設

  • 東が丘保育園の画像

    保育園

    東が丘保育園

    79m(1分)

  • アゼィリア幼稚園の画像

    幼稚園

    アゼィリア幼稚園

    114m(2分)

  • サミットストア 野沢龍雲寺店の画像

    スーパー

    サミットストア 野沢龍雲寺店

    257m(4分)

  • ファミリーマート 目黒柿の木坂店の画像

    コンビニエンスストア

    ファミリーマート 目黒柿の木坂店

    408m(6分)

  • 成城石井 柿の木坂店の画像

    スーパー

    成城石井 柿の木坂店

    457m(6分)

  • 東急ストア 駒沢通り野沢店の画像

    スーパー

    東急ストア 駒沢通り野沢店

    504m(7分)

  • 目黒区立東根小学校の画像

    小学校

    目黒区立東根小学校

    522m(7分)

  • 東根公園の画像

    公園

    東根公園

    656m(9分)

  • 呑川柿の木坂支流緑道の画像

    公園

    呑川柿の木坂支流緑道

    732m(10分)

  • 目黒区立第十中学校の画像

    中学校

    目黒区立第十中学校

    886m(12分)

  • 野沢二丁目公園の画像

    公園

    野沢二丁目公園

    947m(12分)

支払いシミュレーション

月々の支払額

※実際の金額と異なる場合があります。

購入希望物件価格
万円
頭金
万円
金利
%
返済額(ボーナス1回分)
万円
返済期間

※ボーナスは自動で年2回分で計算されます。

近隣の物件

  1. 3/28 価格変更

    目黒区平町2丁目

    4SLDK (143.35㎡)

    22,200万円

  2. 目黒区八雲 新築戸建

    目黒区八雲2丁目

    4LDK (123.58㎡)

    15,900万円

  3. 目黒区上目黒 中古戸建

    目黒区上目黒5丁目

    4LDK (196.64㎡)

    52,800万円

  4. 3/19 話有

    目黒区上目黒3丁目

    2SLDK (96.95㎡)

    16,980万円

よく見られている物件

  1. 2/12 価格変更

    渋谷区西原3丁目

    8LDK (692.30㎡)

    168,000万円

  2. 3/19 話有

    目黒区上目黒3丁目

    2LDK+S(納戸) (96.95㎡)

    16,980万円

  3. 目黒区上目黒 中古戸建

    目黒区上目黒5丁目

    4LDK (196.64㎡)

    52,800万円

  4. 4/9 価格変更

    世田谷区成城8丁目

    2LDK+S(納戸) (108.00㎡)

    18,900万円

目黒区柿の木坂 新築戸建1号棟

目黒区柿の木坂 新築戸建1号棟

19,990万円

-

1LDK+2S(納戸)(143.46㎡)

お気軽にお問い合わせください

無料お問い合わせ

NAHIRO株式会社

03-6804-8040

10:00~19:00

(休:火曜日・水曜日)