NEW

11/20 価格変更

11月20日 値下げ

4,980万円

東京都大田区池上7丁目14-10

東急池上線「池上」駅徒歩4分

東急多摩川線「武蔵新田」駅徒歩16分

東急池上線「蓮沼」駅徒歩15分

価格
4,980万円
坪単価
347.28万円(14.34坪)
所在地
東京都大田区池上7丁目14-10
交通

東急池上線池上」駅 徒歩4分

東急多摩川線武蔵新田」駅 徒歩16分

東急池上線蓮沼」駅 徒歩15分

土地面積(坪数)
47.43㎡(14.34坪)
建ぺい率 / 容積率
60% / 200%

セールスポイント

便利なスーパー「オオゼキ 池上店」まで350mです。池上五丁目公園まで433mです。こちらの売地はニーズも高い土地です。快適な周辺環境で満足の住宅用地はこちらです。経験と知識豊富な不動産のプロがあなたの不動産探しをサポートいたします。不動産に関してどのようなことでも疑問や不安があれば、ぜひお気軽にお問い合わせください。

ポイント

3駅以上利用可 閑静な住宅地 駅徒歩10分以内 前道6m以上 更地渡し

担当者のコメント

川元 洋志

大田区エリアでの住まいなら、住み心地も快適な「大田区池上 建築条件なし売地」はいかがでしょうか。住まいに適した周辺環境の整っている住宅用地はこちらとなっています。駅まで徒歩4分なので、移動時間を短縮できます。前面道路6m以上は確保しているので車の出し入れもラクラクです。希望条件に一致する不動産が見つからず、諦め気味になっていませんか。情報網を活かし、鮮度の高い情報収集に努める当社ならきっとあなたのこだわりに応えることができます。ぜひお気軽にお問い合わせください。

基本情報

販売区画数
1区画
総区画数
1区画
土地面積(坪数)
47.43㎡(14.34坪)
坪単価
347.28万円
私道負担面積
割合
-
セットバック
建ぺい率 /
容積率
60% / 200%
高圧線下面積
-
傾斜地部分面積
-
路地状敷地
-
地目
宅地
地勢
-
造成工事
完了予定
-
土地権利
所有権
建築条件
-
都市計画
市街化区域
用途地域
第一種中高層住居専用
接道状況
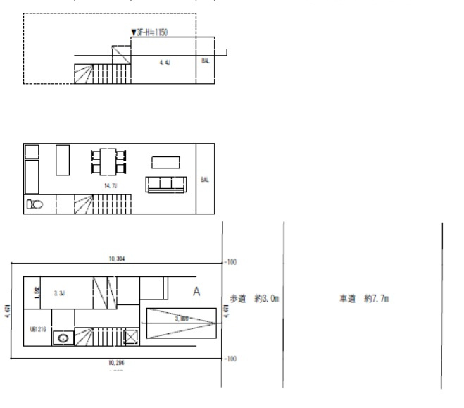
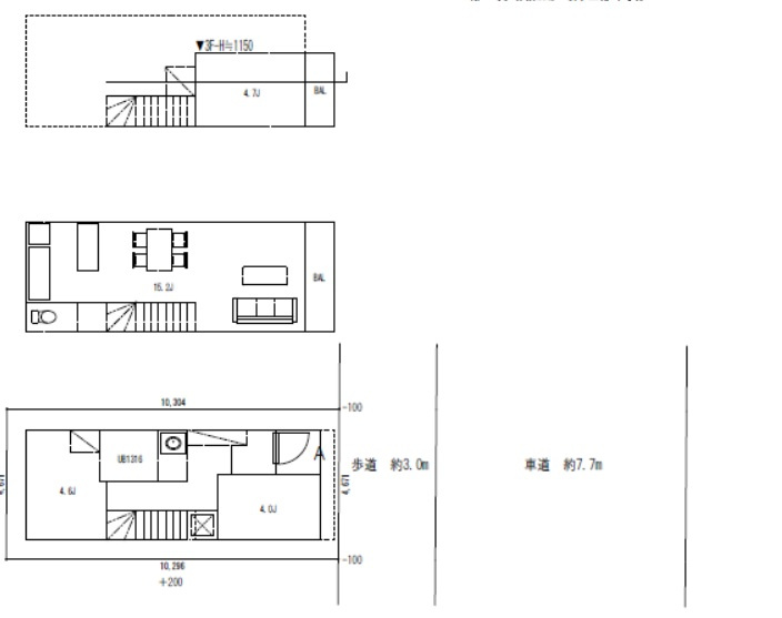
一方(東 公道 10.7m 間口 4.5m)
国土法届出要否
不要
最適用途
住宅用地
その他
法令上の制限
高度地区/準防火地域
取引態様
仲介
現況
更地
引渡条件
更地渡
引渡時期
相談
開発許可番号
-
取引条件の
有効期限
2026年02月05日

設備条件

設備条件
  • 陽当り良好 / 閑静な住宅地
設備(その他)
    -

その他

物件番号
97475728
管理コード
-
情報更新日
2026年01月22日
次回更新予定日
2026年02月05日
取扱会社
  • NAHIRO株式会社
  • 東京都渋谷区松濤2丁目7-12 松濤ハウス 1階
  • TEL:03-6804-8040
  • 東京都知事 (1) 第111039号
  • 全日本不動産協会・不動産保証協会
備考
「大田区池上 建築条件なし売地」のここがイチオシ。日々の暮らしに便利なまいばすけっと 池上駅前店(スーパー)まで178mです。5,480万円で、多くの方からご好評も頂いています。プロのアドバイスで、あなたの不動産に求める夢を明確なものにしませんか。知識と経験豊富な当社スタッフがあなたの住まい探しをサポートいたします。ぜひお気軽にお問い合わせください。

周辺施設

  • 大田区立徳持小学校の画像

    小学校

    大田区立徳持小学校

    172m(3分)

  • セブンイレブン 大田区池上駅南店の画像

    コンビニエンスストア

    セブンイレブン 大田区池上駅南店

    173m(3分)

  • まいばすけっと 池上駅前店の画像

    スーパー

    まいばすけっと 池上駅前店

    178m(3分)

  • グローバルキッズ池上園の画像

    保育園

    グローバルキッズ池上園

    267m(4分)

  • 東急ストア池上店の画像

    スーパー

    東急ストア池上店

    267m(4分)

  • オオゼキ 池上店の画像

    スーパー

    オオゼキ 池上店

    350m(5分)

  • 池上五丁目公園の画像

    公園

    池上五丁目公園

    433m(6分)

  • 徳持幼稚園の画像

    幼稚園

    徳持幼稚園

    491m(7分)

  • 徳持ポニー公園の画像

    公園

    徳持ポニー公園

    619m(8分)

  • 大田区立蓮沼中学校の画像

    中学校

    大田区立蓮沼中学校

    621m(8分)

  • 徳持公園の画像

    公園

    徳持公園

    735m(10分)

  • 長栄山 池上本門寺の画像

    寺院・神社

    長栄山 池上本門寺

    1233m(16分)

支払いシミュレーション

月々の支払額
9.6
購入希望物件価格
万円
頭金
万円
金利
%
返済額(ボーナス1回分)
万円
返済期間

※ボーナスは自動で年2回分で計算されます。

近隣の物件

  1. 大田区中央6丁目 建築条件なし売地

    大田区中央6丁目

    - (299.25㎡)

    19,000万円

  2. 大田区田園調布1丁目 売地

    大田区田園調布1丁目

    - (98.66㎡)

    11,800万円

  3. 大田区南馬込 建築条件なし売地

    大田区南馬込3丁目

    - (123.05㎡)

    7,750万円

  4. 大田区東雪谷 建築条件なし売地

    大田区東雪谷5丁目

    - (167.33㎡)

    1980万円

11/20 価格変更

11/20 価格変更

4,980万円

-(47.43㎡)

お気軽にお問い合わせください

無料お問い合わせ

NAHIRO株式会社

03-6804-8040

10:00~19:00

(休:火曜日・水曜日)